Panorama Projekt- Luxus Penthouse mit Pool
Projektdetails
Noch vorhanden?
Objekt bereits vermietet / verkauftStandort
GorxheimertalFläche
300Zimmerzahl
4 ZimmerBaujahr
Neubau 2026Bauweise
MassivBodenbelag
EdelholzparkettKaufpreis / Mietpreis Stellplatz
Auf AnfrageKaufpreis / Mietpreis
1.750.000Maklercourtage
3,57%
Das Panorama Projekt im Gorxheimertal ist ein exklusives Neubauprojekt mit insgesamt drei hochwertigen Wohneinheiten. Die Architektur verbindet modernes Design mit klaren Linien und einer außergewöhnlichen Lage mit Blick auf Wald und Tal. Ruhig gelegen und dennoch gut an Weinheim angebunden, richtet sich das Projekt an Menschen, die luxuriöses Wohnen, Privatsphäre und Naturnähe miteinander verbinden möchten.
Großzügige Grundrisse, lichtdurchflutete Räume und eine gehobene Ausstattung prägen das gesamte Projekt. Raumhohe Fensterfronten schaffen ein offenes Wohngefühl und lassen die umliegende Natur Teil des Wohnkonzeptes werden. Panorama steht für zeitloses Wohnen in einer der schönsten Lagen des Gorxheimertals.
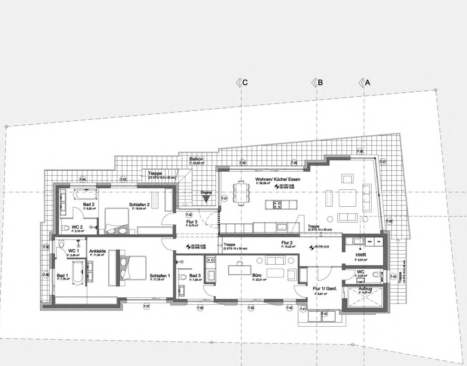
Das Highlight des Projektes ist die außergewöhnliche Penthouse Wohnung. Mit rund 300 Quadratmetern Wohnfläche bietet sie ein exklusives Vier Zimmer Konzept mit zwei Schlafzimmern sowie einem flexibel nutzbaren Hobby Büro oder Gästezimmer. Der offen gestaltete Wohn Essbereich bildet das Herzstück der Wohnung und bietet ideale Voraussetzungen für eine großzügige Küche mit Kochinsel.
Ein besonderes Alleinstellungsmerkmal ist die bereits erteilte Genehmigung für einen Pool auf der exklusiven, 120 qm großen Dachterrasse. Ein Bad im eigenen Pool mit Blick auf Wald und Tal schafft ein einzigartiges Wohngefühl und bringt echtes Urlaubsflair in den Alltag. Die großzügigen Terrassenflächen laden zum Entspannen, Genießen und geselligen Zusammensein ein.
Bodentiefe Fenster, ein durchdachter Grundriss und eine hochwertige Ausstattung unterstreichen den exklusiven Charakter dieser Penthouse Wohnung und machen sie zu einer seltenen Gelegenheit für anspruchsvolles Wohnen mit Weitblick.
(Pool & Dachterrasse sind im Preis inkludiert, das Penthouse kann auf Wunsch auch ohne Dachterasse & Pool übergeben werden)
Die Gesamtfläche des Penthouses beträgt 300,55 qm, bestehend aus 226,74 qm Wohnfläche und einer Dachterrasse von 73,81 qm.
.jpeg)
Weitere Eigenschaften
Besonderheiten
- Balkon / Terrasse: Ja
- Satelliten / Kabel: Ja
- Hauswirtschaftsraum: Ja
- Keller: Ja
- Ausstattung: Luxus
- Personenaufzug: Ja
Info zu Energie
- Heizung: Luftwärmepumpe
- Energieausweisart: Bedarfsausweis
- Energieverbrauch: wird nachgereicht kWh/(a*m²)
Die Gemeinde Gorxheimertal liegt im hessischen Landkreis Bergstraße und nur wenige Autominuten von Weinheim entfernt. Das malerische Grundelbachtal wird auch das "Tor zum vorderen Odenwald" genannt und ist wegen des landschaftlichen Reizes und der guten Verkehrsanbindung an die beiden Metropolregionen Rhein-Main und Rhein-Neckar, ein beliebter Wohnort. Der Ort selbst verfügt über eine sehr gute Infrastruktur und man findet dort alles für den täglichen Bedarf. Kindergarten und Grundschule, sowie ein Ärztezentrum sind ebenfalls vor Ort. Durch die gute Verkehrsanbindung erreicht man die A5 nach Heidelberg, Mannheim, Darmstadt und Frankfurt in ca. 10-15 Minuten mit dem Pkw
Exklusive Ausstattung
• Technik und Materialien: Das Penthouse verfügt über hochwerti-
gen Materialien und technischen Ausstattungen.
• Fußbodenheizung für eine gleichmäßige Wärmeverteilung.
• Optional gegen Aufpreis Split-Klimapanel für angenehme Tem-
peraturen im Sommer.
• Hochwertige Bodenbeläge wie fugenloses Epoxidharz im Wohnbereich und
Parkett in den Schlafzimmern.
• Großflächige, dreifach verglaste Fenster für maximalen Lichteinfall und einen ungestörten Ausblick.
• 120 qm Dachterrasse mit Baugenehmigung für einen Pool
Rechtliche Hinweise:
Die tatsächliche Ausführung kann von den abgebildeten Ansichten und Grundrissen geringfügig abweichen. Die Darstellungen können noch variabel verändert oder angepasst werden.
Änderungen und Irrtümer bleiben vorbehalten.
Beim Kauf verpflichtet sich der Käufer / die Käuferin an die Firma Brockhaus GmbH eine Maklerprovision in der angegebenen Höhe nach Abschluss des notariellen Kaufvertrags zu zahlen.
Alle Angaben sind ohne Gewähr und basieren ausschließlich auf Informationen, die uns von unserem Auftraggeber*in zur Verfügung gestellt wurden.
Wir übernehmen keine Gewähr für die Vollständigkeit, Richtigkeit und Aktualität dieser Angaben.
GELDWÄSCHE: Als Immobilienmaklerunternehmen ist die Brockhaus GmbH nach § 2 Abs. 1 Nr. 14 und § 11 Abs. 1, 2 Geldwäschegesetz (GwG) dazu verpflichtet, bei der Begründung einer Geschäftsbeziehung die Identität des Vertragspartners festzustellen und zu überprüfen, bzw. sobald ein ernsthaftes Interesse an der Durchführung des Immobilienkaufvertrages besteht. Hierzu ist es erforderlich, dass wir nach § 11 Abs. 4 GwG die relevanten Daten Ihres Personalausweises festhalten (wenn Sie als natürliche Person handeln) – beispielsweise mittels einer Kopie. Bei einer juristischen Person benötigen wir eine Kopie des Handelsregisterauszugs, aus welchem der wirtschaftlich Berechtigte hervorgeht. Das Geldwäschegesetz sieht vor, dass der Makler die Kopien bzw. Unterlagen fünf Jahre aufbewahren muss. Als unser Vertragspartner haben Sie auch eine Mitwirkungspflicht nach § 11 Abs. 6 GwG.
Provisionshinweis:
Der Maklervertrag mit der Brockhaus Immobilien kommt durch schriftliche Vereinbarung oder durch Inanspruchnahme unserer Maklertätigkeit auf Grundlage des Objekt-Exposés zustande.
Die vom Käufer im Falle des erfolgreichen Vertragsabschlusses zu zahlende Provision beträgt 3 % des Kaufpreises inklusive der gesetzlichen Mehrwertsteuer und ist verdient und fällig mit Abschluss des notariellen Kaufvertrags.
Interesse? Dann kontaktieren Sie uns über dieses Formular oder rufen Sie uns direkt an.
Kontakt
Email
kosche@brockhaus-immo.deMobil
+49 176 328 390 83Telefon
+49 6201 784 86 48
Lena Kosche
.jpeg)
.jpeg)



.jpeg)

.jpeg)